Peter Whitehouse
BSc (Hons) Architecture

About Me: I am a final year architecture student with a primary interest in the role of architecture in reducing carbon emissions. I have a breadth of experience in the use of CAD and BIM software, including Revit. I am seeking a Stage 1 Architectural placement to gain additional experience and continue training to become a fully qualified architect.
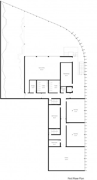
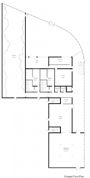
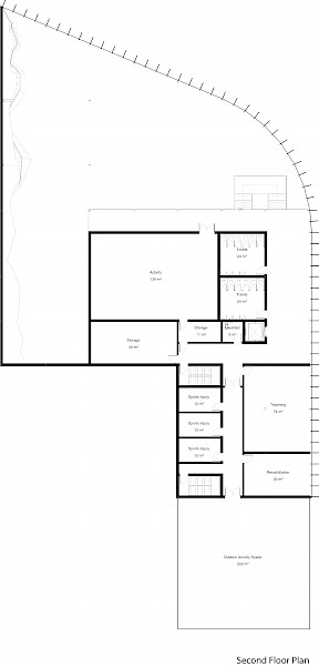
The Project: This design is for a multi-functional sports centre that is to be developed by Coventry University, and situated on the edge of their city campus. The building is being developed for intended use by Sport Coventry, Team Phoenix (the university elite athletics programme) and the local community, with the aim of developing the connection of the university to the local community and surrounding area.
The exterior of the building has been designed around the blue and pink colouration of the Sport Coventry logo. This includes development of an exterior 400 metre running track that is elevated to form an entrance to the building. The interior of the design provides a variety of spaces for all potential users, including a climbing and bouldering wall, strength and conditioning area, activity space, sports injury/ rehabilitation area, teaching rooms and more.














