Johannes Hackl
BSc (Hons) Architecture

My name is Johannes Hackl and I am a recent Coventry University graduate. For the past 4 years I have been studying architecture here in Coventry and away in Madrid as part of the Erasmus programme. I developed my love for architecture and technology already as a child when I was creating buildings and robots from LEGO pieces. Back home in Austria I attended a 5-year technical school with focus on architecture and engineering. This is when I realized that technology and sustainability had a special place in my heart.
To me, architecture as well as urbanism should always primarily respond to current issues. Finding cutting-edge solutions to climatic challenges, public transport exclusion, housing shortages are just a few problems which a well technologically advanced design can provide. I try to convey those values in all of my projects, portraying the future in an optimistic light.
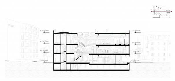
The Atrium represents a sustainable centre for innovation, while simultaneously attempting to re-diversify Coventry's student dominated city centre. The proposal's design was heavily driven by its diagonal passage forming an atrium which penetrates all floors of the building. This void forms a connection between the built-up city centre and a previously neglected riverside park. The rooftop residential development acts as a prototype for flat-roof extension to other buildings in the city to re-inhabit and diversify inner Coventry.












