Yuanmin Xiao
BA (Hons) Interior Architecture and Design
A confident, enthusiastic and hard-working London based junior interior designer who is able to multitask, keep calm under pressure and work as part of a team. Someone who will not only be able to contribute to the improved efficiency and profitability of a company but will also be able to rapidly grow in skill and experience.
Yuanmin has hosted a '30 Minutes With...' episode, featuring Creative Director at Dulux, Marianne Shillingford. Watch the conversation here.
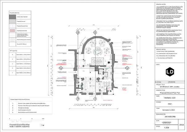
61 Whitehall is a Grade II* Listed Building designed by Sir Aston Webb and constructed in 1895. Proposing a post-pandemic 5 storey office building, which has a restaurant, bar, social space, office area, a collaboration room, meeting room, library and a self-service apartment for business travellers. The end users are 23-34 year old young workers who don't have a suitable workstation at home. The aim is to create a safe, healthy and comfortable work environment, in order to maintain employees' long-term physical and mental health in the future.




















