Anelia Bruseva
BA (Hons) Interior Architecture and Design
I am a confident and very passionate designer, who is aiming to create sustainable and long-lasting designs. I have a very high level of 2D and 3D technical skills gained throughout my studies at Coventry University including software like Vectorworks, SketchUp, Enscape, Photoshop, In-Design, PremierPro, etc. I am a motivated designer who can work well on both individual and group projects, managing to speak up my ideas in front of a team. After three years of studying, I look forward to work in the industry and eventually see my designs coming to life.
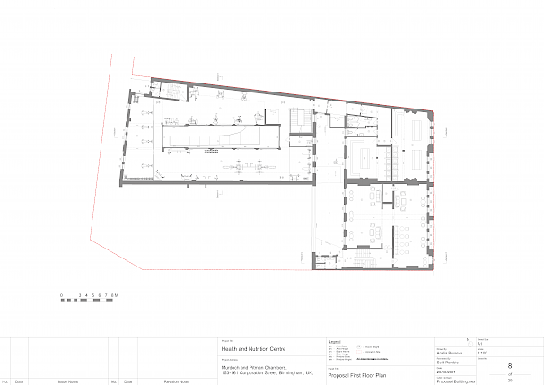
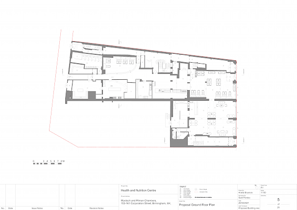
Murdoch and Pitman Chambers is a sport and nutrition centre that blends physical activities and healthy eating into one, creating a healthier lifestyle for its customers in long term. Located at 155-161 Corporation Street in the City Centre of Birmingham, the venue is within walking distance from many working and studying people, having busy and stressful daily routines, helping them improve their physical and mental health. The centre will include a gym on two floors with cardio and cycle rooms, dance and yoga halls, a self-service restaurant, a cafe, a rooftop garden and massage studios.


















